img

Семейное поместье

Семейное поместье

«Первое правило накопления богатства гласит: не мешайте этому процессу без необходимости» Чарли Мангер

Общий прогресс цели

40%
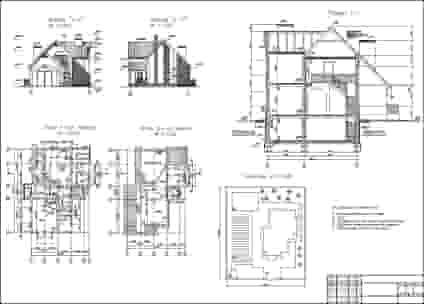
  • Завершение проектирования

    Завершено обсуждение финального проекта по строительству дома. Стили и дизайн определённы и отбражены в проекте и чертежах

  • Куплен земельный участок

    Приобретен необходимый земельный участок для будущей застройки

  • Согласованы работы

    Выбран подрядчик для контроля и реализации строительства

  • Согласованы работы

    Выбран подрядчик для контроля и реализации строительства

  • Согласованы работы

    Выбран подрядчик для контроля и реализации строительства

  • Согласованы работы

    Выбран подрядчик для контроля и реализации строительства

  • Согласованы работы

    Выбран подрядчик для контроля и реализации строительства